Ładowanie...
Metraż:
47.01 m²
Pokoje:
3
Dostępność:
Dostępne
Cena za m²:
9 490 zł
Cena całkowita:
446 125 zł
Archiwum cen
Parametry mieszkania
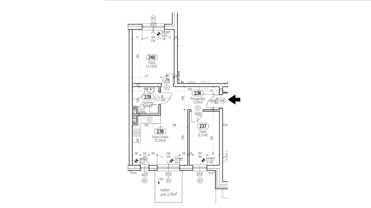
Pomieszczenie
metraz m²
Przedpokój:
7.23
Pokój:
8.71
Salon + Aneks:
15.30
Łazienka:
3.65
Pokój:
12.12
Biuro Obsługi Klienta: +48 535 070 346
Budynek H
Piętro 2
Metraż:
47.01 m²
Pokoje:
3
Dostępność:
Dostępne
Cena za m²:
9 490 zł
Cena całkowita:
446 125 zł
Ładowanie...
Pomieszczenie
metraz m²
Przedpokój:
7.23
Pokój:
8.71
Salon + Aneks:
15.30
Łazienka:
3.65
Pokój:
12.12